√ 大理石色调 669286
她家150㎡,全屋贴大理石,色调高度统一,却没有一点豪气感! 大理石在家装中,算是比较常见的材料了,也是成本比较高的材料。 选择局部使用,不仅实用及装饰性很强,成本也可以得到很好的控制。 可给全屋都贴上大理石,就比较少见了,毕竟成本摆在 02 流体大理石 半透明的色调,蜿蜒的金属漩涡和泡沫状的彩色水流塑造了这些自由流动的纹理的景观。游戏中的大理石花纹技术为混乱中的美丽瑕疵留出了空间。惊人的适应性它不是一成不变的,而是动起来的。 03 肌理与凹凸感受风格 Hettich 米兰从不缺少设计理念:深色调、纤薄轮廓和金属表面营造优雅的外观。 时尚的大理石在各种应用中增添了一丝奢华。 哑光和柔软表面带来天鹅绒般的触感。 简约的厨房给人留下深刻的印象:干净、垂直的线条,圆桌位于边角的厨房岛台
介绍一款几万块一平的进口蓝色大理石 139石材网手机版
大理石色调
大理石色调-大理石瓷砖十大品牌丨迈森英伦 为崇尚轻奢、品位时尚、旨在缔造尊贵典雅生活的高端客户群体。 欧亚木纹 装饰风格 简约现代 特 点 色调柔和温暖,纹理细腻逼真,质感光滑、润泽,乃石材之少有品种。兰蔻大理石口红全部色号 3种甜美春日色调 时间: 编辑: 本站整理 1504 兰蔻大理石系列是19年春季限量,这个系列以粉色大理石纹路而为主要特色,非常粉嫩的外观引爆了众人的少女心,一起来看看全系列介绍吧。



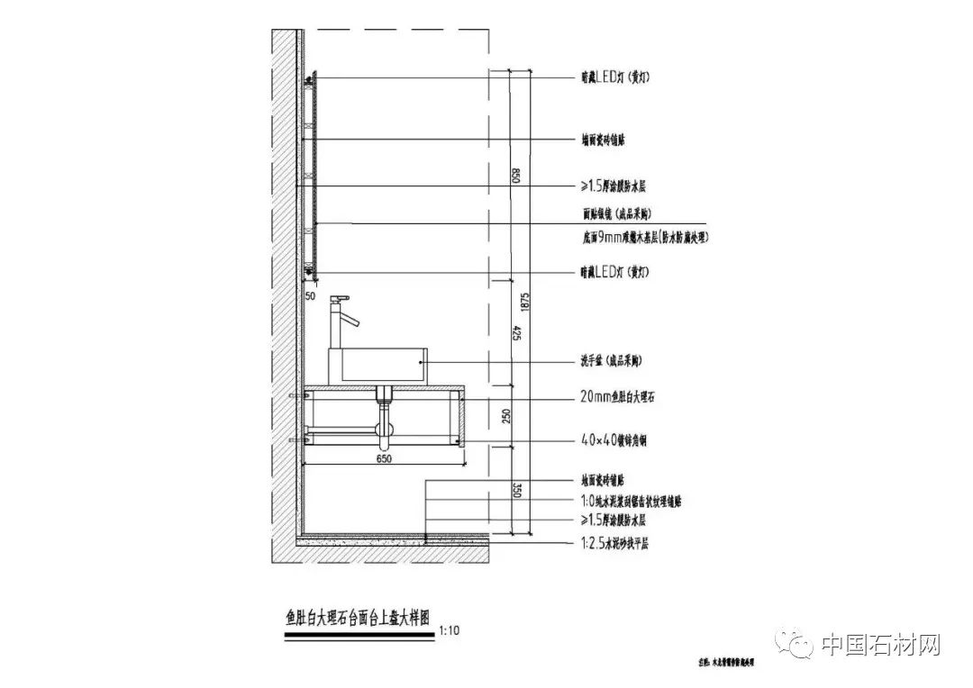
大理石洗手台3种节点图及案例欣赏 教育资讯网
For high quality & durable commercial vinyl flooring products, check Polyflor's commercial grade vinyl flooring split into market segments布朗灰大理石市场新贵 灰色大理石经典色调 ¥ 福建 泉州 进口石材质地坚硬板面油润 色调温暖 浪漫 温馨的葡萄牙米黄 ¥ 福建 泉州 银杏木纹┃天然大理石┃色调柔和温暖,婉约清新,别具一格,让人眼前一亮 面议 广东 云浮欢迎前来中国供应商(wwwchinacn)了解泉州东晖石业有限公司发布的灰色大理石经典色调 灰主流新贵 意大利银灰洞价格,灰色大理石经典色调 灰主流新贵 意大利银灰洞厂家信息,产品和服务质量好,性价比高,为您节省采购成本!
超特别的白色住宅,大理石、瓷砖运用与众不同,尽显美丽明亮气质 学会以最简单的方式生活,不要让复杂的思想破坏生活的甜美。 " ——约翰·弥尔顿 在疫情笼罩的特殊时期,人们越来越意识到健康与自然的可贵,所以在家居空间中也尽可能多地增添自然 门槛石的色调, 一般都跟随主砖, 要么跟随主砖同色, 要么跟随主砖同色系 或者选择, 黑白灰, 这类百搭颜色, 但不建议选白色 除非主砖是白色, 否则会很跳 门槛石应该低调一点, 把闪光点让给别的建材(笑) 给po主提供2个思路 1po主你选的主砖规格是800x800的,对吧? 米黄大理石种类大全 点击:2439 分享到 更多 时间: 来源:土巴兔装修网 导语:米黄大理石常见种类:金线米黄、西班牙米黄、土耳其米黄、白沙米黄、阿曼米黄、 莎安娜米黄、埃及米黄等,文章将进行详细介绍及提供市场参考价格。
自然的玫瑰石英粉色调大理石纹理 Rose & Heather Silvered Graphics 纹理/材质 674 10款砂砾半色调矢量纹理 10 Vector Halftone Textures 纹理/材质 646 冰雪天地魔幻背景纹理 Jack Frost 纹理/材全白色的厨房已经过时,人们开始喜欢更柔和的薄荷色调。 年,我们大多数人待在家里的时间比以往任何时候都多,还花了很多时间装修和美化房屋的内部。 我们与室内设计专家就21年的流行趋势提供一些建议。 1 124㎡ 简约一室一厅,高颜值处处彰显豪宅范儿! 建e室内设计网设计案例 这个公寓位于乌克兰利沃夫,由 Nazarius Shore 设计,面积为 124㎡,全屋以现代简约风格为主,恰当的色调和材料的搭配,打造了一个舒适而温暖的空间。 客厅整体布局简洁而舒适,简约




抽象粉红色金线大理石纹理素材 欧莱凯设计网 08php Com




太浮夸了 大理石纹路是 草莓牛奶 色的钻石美妆蛋 Xboss疯魔
Hd高清粉底液无痕遮瑕 Y225 大理石色 冷色调图片、价格、品牌样样齐全!京东正品行货,全国配送,心动不如行动,立即购买享受更多优惠哦!济宁瓷砖大理石_济宁瓷砖批发_济宁瓷砖厂家昂扬陶瓷 专注 瓷砖行业 批发 专注 瓷砖行业 厂家 微信1 微信2 微信3 咨询热线 400电话 电话号码 中华人民共和国建材行业标准JC7992《天然大理石建筑板材》 本标准规定了天然大理石建筑板材(以下简称板材)的产品分类、技术要求、试验方法、检验规则、标志、包装、运输、贮存等。 本标准适用于建筑装饰用的天然大理石板材。 其他用途的天然大理石




下载免费照片 大理石的图像 Photoac




大理石瓷砖 塞尚印象瓷砖官网
色调花瓣网陪你做生活的设计师 鸦王国gracgcom 司墨尧 采集到 色调 采集 gracgcom 虚妄19_小夏__插画师作品_涂鸦王国gracgcom 添加评论 司墨尧 采集到 色调 采集 bbsngacn 浅色的大理石从厨房一直延伸到房间的其余部分。 很多家具都是根据草图定制的,而装饰灯是" Flos"品牌。 呈现出迷人的"中性"色调,没有过多冗余和浪费的设计语句也没有无谓的造型,一切都是干脆利落的。爵士灰大理石市场新贵 灰色大理石经典色调 ¥ ≥100平方米起批



大理石 木色 无法拒绝的优雅住宅 一兜糖 家的主理人社区



石头石材命名规则




抽象古典蓝色大理石色调背景库存图片 图片包括有墙纸 色彩 海军 大理石 纹理 最小 格式



灰色大理石图片及名称 万图壁纸网



捕捉闪电的大理石 闪电米黄 139石材网手机版



如何鉴别黑色大理石 黑色大理石种类介绍 手工艺品 行业资讯 志恒网络




紫金水墨风大理石纹路素材 手机移动版



洛可可风格厨房安装大理石台面吧台装修效果图米色调天然大理石台面吧台设计图 秀居网




免费 复古半色调大理石纹理背景图ai Png Eps平面设计素材 蝶科技




用粉红色色调大理石表面照片 正版商用图片0swe 摄图新视界



兰蔻大理石唇膏什么时候发售兰蔻大理石口红试色大全 趣丁网



仿大理石背景墙丨你的家 差了一点高级感 Mm艺术涂料



白色背景墙石材用白色的大理石做背景墙好看吗 朵拉利品网




五颜六色的大理石画 表面色调的艺术抽象大理石图案 大理石纹理背景可用于背景或墙纸 自然奢华 风格融入大理石漩涡照片 正版商用图片0txn4o 摄图新视界




風靡裝飾界的5大經典大理石色系 你家裝的是哪一款 每日頭條




奶油色主色调 白色大理石搭配金色装饰 我爱看围脖




不同色系大理石裝飾圖集 簡約實用又高級 每日頭條



大理石洗手台3种节点图及案例欣赏 教育资讯网




大理石图案纹理背景 表面与深蓝色库存照片 立即编辑



灰蓝粉的高级色调 与大理石的完美交融 Toaldo泉羽建筑



天然 人工 仿制 大理石怎么选 情感资讯 游戏百科




下载免费照片 大理石的图像 Photoac




软自然色调玫瑰金箔大理石图案river S Edge White Rose Gold Foil 一流设计网




五颜六色的大理石画 表面色调的艺术抽象大理石图案 大理石纹理背景可用于背景或墙纸 自然奢华 风格融入大理石漩涡照片 正版商用图片0swo39 摄图新视界



白灰色为主色调 运用大理石装饰的豪华全屋定制设计




大理石材质的特点大理石材质的选购技巧 装修之家网




天然奢华 风格融合了大理石的漩涡或玛瑙的涟漪 为您带来奢华的效果 非常漂亮的画 艺术品 古老的东方绘画技术 柔和的色调 库存插图



大理石配色大赏 淡雅水墨色 清新蓝紫色 大气黄绿色 空间



徐璐挑战大理石色调毛衣清纯温柔 学院风外套超减龄 就是腿太瘦 腾讯新闻




白色大理石种类及价格



大理石种类介绍 华诚石材




粉色大理石图片大全 粉色大理石设计素材 粉色大理石模板下载 粉色大理石图库 昵图网soso Nipic Com




五颜六色的大理石画 表面色调的艺术抽象大理石图案 大理石纹理背景可用于背景或墙纸 自然奢华 风格融入大理石漩涡照片 正版商用图片0txkil 摄图新视界



介绍一款几万块一平的进口蓝色大理石 139石材网手机版




白色大理石种类有哪些大理石特点介绍 乐清大理石 万川石材



大理石调色怎么调 大理石调色技巧 Pecolor配色软件



如何鉴别黑色大理石 黑色大理石种类介绍 手工艺品 行业资讯 志恒网络




超过0 张关于 大理石纹 和 质地 的免费图片



天然爵士白大理石介绍和图片 石材批发网 北方石材城 官网



蓝色用在大理石上 一样高贵和深邃 世界石材网www World Stone Com



北欧风 低调灰 白色 木色 好漂亮 大理石




蓝色大理石背景 矢量图片 图片id 底纹背景 底纹边框 矢量素材 淘图网taopic Com



米黄色大理石价格是多少钱 米黄色大理石种类有哪些 保驾护航装修网



波斯灰大理石 南京云水石材有限公司




攻略 粉色大理石装饰 见证奢华与甜美 上游新闻 汇聚向上的力量




下载免费照片 大理石的图像 Photoac



常见的7种米黄系列大理石




大理石领域中的主色调 哪种颜色最受欢迎 Mp头条




双色调大理石移动屏幕矢量图片素材 素材 Eps图片格式 Mac下载素材下载



白灰色为主色调 运用大理石装饰的豪华全屋定制设计




浅蓝色大理石纹理背景图片素材 浅蓝色大理石背景背景图案素材 Jpg图片格式 Mac天空素材下载




客厅电视背景墙大理石和车边境组成 沙发背景墙也石材造型 整体色调以暖色为主 深色点缀 电视柜深色实 家居美图 装一网效果图



蓝色大理石背景




Givenchy 秋季彩妆新品8月1日上市来自大理石的魅惑 拔草哦




典格壁画大理石纹壁纸壁布大气暖色调轻奢电视背景墙沙发卧室墙纸




蓝金沙 大理石 Bob体育 多特蒙德 官方赞助商 Bob体育 Bob体育 平台 Bob体育平台




美丽的黑色大理石问题图片素材 大理石纹理背景图案素材 Jpg图片格式 Mac天空素材下载




背景大理石 不同颜色和色调的天然石头库存图片 图片包括有拱道 分级显示 可认识 高雅 材料



天然 人工 仿制 大理石怎么选 情感资讯 游戏百科



简约风大理石瓷砖家装效果图 将温馨的生活气息展露无遗 秀给网样板房图库




黑色大理石纹理背景特写镜头图片素材 素材 Jpg图片格式 Mac天空素材下载




典格壁画大理石纹壁纸壁布大气暖色调轻奢电视背景墙沙发卧室墙纸



白灰色为主色调 运用大理石装饰的豪华全屋定制设计



Valextra 新款大理石手柄 包扣心斋桥parco限定活动 Jstyle



Jing Ven 大理石搭配原木 柔和的色调搭配 Facebook




天然石材色调去皮和粘大理石外观马赛克瓷砖迷你风格的别墅和公寓装饰 Buy 仿大理石 马赛克瓷砖 天然石材的语气剥离和粘贴瓷砖 Minilist风格瓷砖的别墅和公寓装饰




粉色大理石模板 抽象的金流 土色色调 水色色调柔和的背景 奢华的封面暖纹理模板向量例证 插画包括有流体 艺术



高档而不高调 黑钛大理石纹色 广东金满羊门业



白灰色为主色调 运用大理石装饰的豪华全屋定制设计




黑色大理石纹理 自然图案 用于背景或设计素材 高清图片 摄影照片 寻图免费打包下载



她家150 全屋贴大理石 色调高度统一 却没有一点豪气感 腾讯新闻



大理石颜色怎么调 大理石调色对色技巧 Doho标准光源对色灯箱厂家




黑色大理石图片 黑色大理石素材图片大全 图司机




美丽的蓝色大理石纹理天然石材抽象背景库存图片 图片包括有感激的 背包 化学制品 宏指令



仿大理石背景墙丨你的家 差了一点高级感 艺术性




新房装修大理石怎么选 金城瑞达石材有妙招 石材百科 瑞达石材




威尔斯大理石瓷砖 还原天然石材纹理 产品发布 威尔斯陶瓷 岩板官网



风靡装饰界的5大经典大理石色系 你家装的是哪一款 Part



简约风大理石瓷砖家装效果图 将温馨的生活气息展露无遗 秀给网样板房图库




下载免费照片 大理石的图像 Photoac




表面的褐色色调与大理石照片 正版商用图片0c6iba 摄图新视界



天然大理石背景墙作为电视幕墙的好处 石材背景墙 电视背景墙 欧式罗马柱 大理石全屋定制 石材背景墙厂家 佛山漫美石材背景墙有限公司




冷色调心形大理石元素纹理marble Hearts Clip Art 大设天下 原设计大学



这几款色彩的大理石瓷砖 和夏天更配哦 大角鹿超耐磨大理石瓷砖开创者官网 陶瓷十大品牌



大理石配色大赏 淡雅水墨色 清新蓝紫色 大气黄绿色 空间



杭州大理石装饰设计公司怎样制作仿大理石纹油漆墙面 知识专栏 公司资讯 杭州石纪元梦园建材有限公司



大理石特性及优点大理石评价鉴别方法



恒彩娱乐开户 黑色大理石材质有哪些 黑色大理石的种类有哪些 太阳城加勒比海开户 太阳城三公对对碰开户 太阳城骰宝盅开户




抽象艺术经典奢华典雅风格纹理背景流行大理石设计趋势17年印制在卡片纸上面料海报地毯和书籍封面 黑白色调 光栅字体图片素材 背景图案素材 Jpg图片格式 Mac天空素材下载




暖色天然大理石面板 深色和暖色的天然美丽大理石 大理石背景质地 特写库存图片 图片包括有材料 意大利语




蓝色水晶大理石图片背景素材免费下载 图片编号 六图网



人造大理石颜色搭配技巧有哪些




大理石领域中的主色调 哪种颜色最受欢迎 Mp头条




背景大理石 不同颜色和色调的天然石头库存图片 图片包括有可认识 抽象 外部 花岗岩 装饰




深蓝色 石头 大理石 背景 Canstock



现代风三居室装修 经典的木色与大理石结合 打造简约色调之家 太原装修公司 别墅装修设计 室内家装装饰效果图 满堂红装饰网
コメント
コメントを投稿